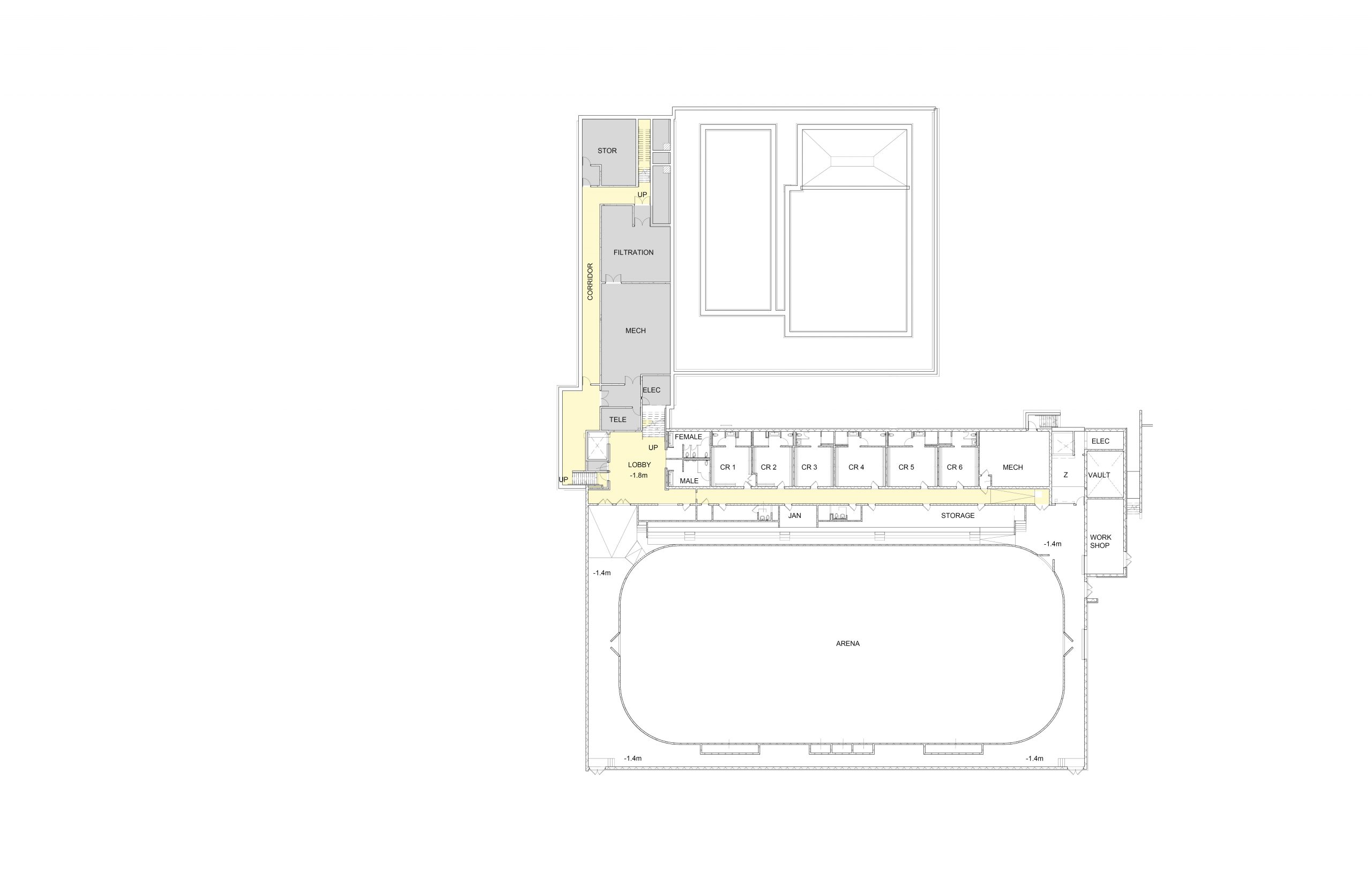
Photographs of completed renovations and construction progress. Plus, designs and plans for the renovation, as well as artist renderings.
Photographs of completed renovations and construction progress. Plus, designs and plans for the renovation, as well as artist renderings.